By allowing ads to appear on this site, you support the local businesses who, in turn, support great local journalism.
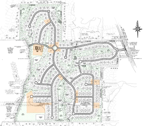
Where nearly 200 homes may be built in south Forsyth County
02042025TOLL BROS HOMES
Concept plan for the proposed 187-home subdivision off Old Atlanta Road in south Forsyth County. Image courtesy of Forsyth County.
A new neighborhood of nearly 200 homes in south Forsyth County is one step closer to being developed.